Le Coquelicot
Lieu : Avignon - 84000
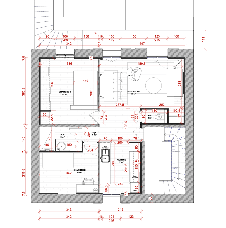
Surface de plancher : 55m²
Montant des travaux : 65 000 €
Maitrise d'ouvrage : privée
Type de mission : mission complète
Pendant que certains chantent la vie en rose, en Avignon on chante le printemps et l'arrivée des coquelicots. Symbole de liberté et de renouveau, le coquelicot fait échos à l'histoire du lieu. Ancienne maison de famille divisée en deux lots, le coquelicot prend racine au premier étage d'un pavillon des années 60. Ici on chante la vie couleur mandarine !
























Studio 41 architecture
contact@studio41architecture.fr
+33 6 84 73 98 93
Copyright © 2026 studio41architecture.fr tous droits réservés
Powered by studio41architecture.fr
6 impasse Croix de Régnier, 13004 Marseille
architecte DE - HMONP
